Инженерный тур. 3 этап
Современные библиотеки теряют свою значимость в обществе из-за устаревшей инфраструктуры и неподготовленности к новым требованиям пользователей. Это приводит к снижению культурной и образовательной активности населения, особенно в небольших городах и сельской местности.
Участникам необходимо разработать архитектурную концепцию модельной библиотеки, формирование пространства нового поколения, которое станет современным центром знаний, культуры и общения. Необходимо создать информационную модель здания библиотеки, дизайн интерьера читального зала и проект благоустройства прилегающей территории с использованием цифровых технологий. Концепция разрабатывается в рамках Федерального проекта «Культурная среда» национального проекта «Культура», направленного на создание модельных библиотек по всей стране.
Задача дает возможность получить архитектурные решения, которые смогут объединить традиции и современные технологии, сделают библиотеки актуальными и востребованными.
Ваше архитектурное бюро выиграло тендер на проектирование модельной библиотеки1 в одном из активно развивающихся муниципальных образований. Новый объект должен стать современным пространством для жителей всех возрастов, объединяя функциональность, эстетику и комфорт.
Перед вами стоит задача разработать архитектурную концепцию модельной библиотеки, отвечающую актуальным требованиям и интегрированную в городской контекст. Проект должен учитывать климатические и социальные особенности территории, а также возможности внедрения инновационных решений, делая библиотеку ключевой точкой культурного развития.
Количество участников в команде: 3–4 человека.
Компетенции, которыми должны обладать члены команды:
- архитектор: сбор, анализ и обработка данных, разработка концепции, создание информационной модели (Renga);
- программист: проектирование, создание информационной модели, параметрическое программирование;
- визуализатор: трехмерное моделирование, создание статичной и иммерсивной визуализаций, работа с движком (Twinmotion, Lumion).
Желательно, чтобы каждый член команды обладал компетенциями как минимум двух ролей и мог продумывать действия за рамками собственной специализации. Это нужно для того, чтобы наилучшим образом использовать их совместные усилия и обеспечить взаимозаменяемость.
Список оборудования на заключительном этапе:
- персональные компьютеры для каждого участника;
- VR-станции — 4 шт. (по одной на 2 команды);
- возможность подключения к рендер-ферме НГУАДИ для оперативного процесса рендера.
| Наименование | Описание |
|---|---|
| Renga | Создание цифровой модели здания. |
| Rhino + Grasshopper | Создание параметрических элементов. |
| Dynamo | Создание параметрических элементов. |
| Twinmotion | Сборка сцены, создание визуализаций проекта и видео-презентации. Создание иммерсивной визуализации. |
| Lumion | Сборка сцены, создание визуализаций проекта и видео-презентации. Создание иммерсивной визуализации. |
| Blender | Сборка сцены, создание визуализаций проекта и видео-презентации. |
Создание архитектурной концепции модельной библиотеки, включающей в себя:
- Выбор архитектурной концепции через генерацию изображений с использованием ресурсов искусственного интеллекта для определения архитектурного образа модульной библиотеки. Анализ полученного образа, адаптация под реальные ограничения. Воспроизведение образа с использованием навыков информационного моделирования и программирования.
- Создание информационной модели на основе чертежей.
- Разработка планов функционального зонирования с учетом трансформируемых пространств.
- Проектирование интерьера читального зала.
- Расчет рабочих мест в читальном зале.
- Разработка плана освещения читального зала.
- Разработка плана напольных покрытий читального зала.
- Разработка непараметрического фасада.
- Разработка параметрического фасада.
- Создание средового дизайна.
- Создание визуализаций.
- Презентация проекта.
Подробные требования к проекту находятся в техническом задании (Приложение 1).
В качестве исходного материала участникам предлагается:
- Трехмерная модель земельного участка (в формате
fbx). - Ситуационная схема участка, координаты.
- Опорные чертежи планов этажей библиотеки (Приложение 1).
- Ссылка на своды норм и правил по проектированию.
- Дополнительные справочные материалы и примеры, находящиеся в виде ссылок в Приложении 1.
- Информационная 3D-модель библиотеки на основе обмерного плана и технического задания. Включение конструктивных элементов: несущие конструкции, стены, перекрытия, окна, двери, лестницы.
- Схемы функционального зонирования двух этажей.
- План расстановки мебели и оборудования читального зала.
- План освещения читального зала.
- План напольных покрытий читального зала.
- Схемы сценарного использования пространства читального зала (схематичная визуализация трансформации пространства).
- Непараметрический фасад здания.
- Фасад здания с параметрическим элементом.
- Средовой дизайн участка в соответствии со схемой организации земельного участка.
Результаты предоставляются в виде материалов для защиты проекта:
- презентация и наглядный способ представления проектного решения (видеооблет).
В презентации необходимо:
- Обосновать концепцию принятого решения.
- Показать навыки и знания технологий информационного моделирования, применяемые в проектном решении.
- Организовать работу проектной команды над реализацией проекта.
Предполагается очное публичное выступление команды перед экспертной группой с ответами на вопросы.
Задание выполняется в два этапа:
- Первый этап проводится в течение двух дней — 4 и 5 марта. Команда должна завершить выполнение всех заданий этого этапа до 5 марта, 18:45 (НСК).
- Второй этап проходит 6 марта, и все задания второго этапа должны быть полностью выполнены до 6 марта, 18:45 (НСК).
В случае, если команда не может выполнить определенную подзадачу, могут быть предусмотрены несколько вариантов решения:
- использование подготовленных заготовок, шаблонов;
- перераспределение задачи внутри команды;
- представление концепции в формате эскизных чертежей, коллажей, скетчей или аналоговые методов визуального представления проекта.
Использование данной опции обсуждается с разработчиками на площадке.
Перед началом работы важно ознакомиться с каждым разделом заданий (1.1. Моделирование, 1.2. Программирование, 1.3. Визуализация) в этапе 1.
Также перед началом работы важно определиться с архитектурным образом модельной библиотеки, используя генеративные нейросети и после адаптируя их к реальным условиям проектирования (см. раздел 1.3. Визуализация). Итоговый образ решает дальнейшее движение команды в течении рабочего дня. Каждый из разделов должен выполняться параллельно и сообща, поддерживая одну идею и художественный образ.
Участникам необходимо ознакомиться с исходными данными на проектирование, ситуационной схемой участка в городе. На этом этапе объем выполняемой работы рекомендуется поделить на две части (см. ниже).
Построение BIM-модели основного объекта модельной библиотеки (здание библиотеки) на основе представленных чертежей (https://disk.yandex.ru/i/XW3tEJ6kwaPGtw). Модель обязательно должна включать все необходимые элементы:
- сетка координационных осей;
- основные размерные линии;
- наружные стены, внутренние несущие стены и колонны;
- окна, двери;
- перекрытия, лестницы и крышу.
Команда может самостоятельно выбрать форму окон, дверей и крыши, адаптируя проект под выбранную архитектурную концепцию. Допускается увеличение пространства как в горизонтальном, так и в вертикальном направлении, при этом высота не должна превышать 10 м. Включение кровли в эксплуатируемое состояние также разрешено, однако важно учесть конструктивные особенности покрытия, предусмотреть необходимые инженерные системы для эксплуатации этой зоны, а также соблюдать требования безопасности и доступности для всех пользователей.
Следует предусмотреть требования пожарной безопасности, включая:
- эвакуационные выходы, размещенные на каждом этаже, обеспечивая быстрый и беспрепятственный выход людей из здания; для двухэтажной библиотеки необходимы лестницы, ведущие на улицу, с учетом нормативов по ширине и уклону;
- пути эвакуации, ведущие через коридоры, холлы и дверные проемы, должны иметь достаточную ширину (не менее 1,2 м для основных путей), исключая «ловушки».
Важно предусмотреть элементы доступной среды для людей с ОВЗ, включая:
- пандусы и тактильные указатели для удобного входа в здание;
- лифт или подъемную платформу для перемещения между этажами;
- широкие дверные проемы и коридоры для комфортного передвижения людей на колясках;
- специально оборудованные зоны внутри библиотеки (например, места с пониженной высотой столов и информационные терминалы с голосовым сопровождением).
Проект должен учитывать не только функциональность и эргономику, но и инклюзивность, обеспечивая комфортное использование библиотеки всеми категориями посетителей.
Начало моделирования средового дизайна. Для моделирования площадки и дорожек участники используют готовую 3D-модель рельефа (https://disk.yandex.ru/d/EI98wBX9gUE5Kg). Также предоставляются координаты (54.453322, 83.376093) и ситуационная схема участка в городе (https://disk.yandex.ru/i/dXkYwTJQhNBO7Q). При проектировании важно учитывать городскую ситуацию: расположение здания относительно транспортных потоков, пешеходных маршрутов и окружающей застройки. Следует предусмотреть удобные связи библиотеки с общественными пространствами, остановками транспорта и велодорожками. Пространство вокруг библиотеки должно гармонично интегрироваться в городскую среду, обеспечивая комфортную навигацию и безопасное передвижение для всех групп пользователей, включая маломобильных граждан. Помимо этого необходимо учитывать существующий рельеф, обеспечивая удобные и безопасные маршруты передвижения по территории библиотеки. Дорожки и подъездные пути должны обеспечивать комфортное и безопасное передвижение для посетителей и персонала, а также доступ для экстренных служб. Их ширина варьируется в зависимости от назначения и интенсивности использования:
- Пешеходные дорожки — рекомендуется ширина от 1,5 до 2,5 м в зависимости от ожидаемой нагрузки. Для основных маршрутов к входным группам — не менее 2 м.
- Автомобильные въезды на территорию библиотеки — ширина определяется видами транспорта, включая личные автомобили и автобусы. Минимальная ширина составляет 3 м, для двустороннего движения — от 5 м.
Проезды для пожарных автомобилей — должны соответствовать нормативным требованиям:
- не менее 3,5 м при высоте здания до 13 м включительно;
- не менее 4,2 м при высоте здания от 13 м до 46 м включительно.
- При проектировании дорожек важно учитывать требования доступности, удобства навигации и интеграции в общий ландшафтный дизайн.
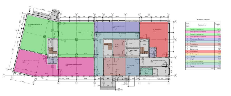
- Создание схемы функционального зонирования по двум этажам (1 и 2 этаж). Схемы функционального зонирования могут быть выполнены в программах, внутри которых ведется моделирование (Renga, ArchiCAD), графическая доработка может быть выполнена в доступном графическом редакторе (Photoshop, Illustrator, CorelDRAW).
- Функциональное зонирование следует выполнить согласно экспликациям к чертежам, весь необходимый состав приведен в таблицах 1.1–1.2. При этом допускается дополнять проект новыми зонами, а также изменять расположение некоторых пространств между этажами, если это соответствует логике и удобству использования библиотеки.
Таблица: Экспликация помещений первого этажа № Наименование 1 Входная группа 2 Вестибюль / зона ожидания / информационная зона 3 Гардероб 4 Основной читальный зал 5 Зона неформального чтения 6 Административная зона 7 Детская зона 8 Технические помещения Таблица: Экспликация помещений второго этажа № Наименование 1 Тихий читальный зал 2 Коворкинг 3 Интерактивная зона / мастер-классы 4 Зона лекций и мероприятий 5 Архив и книгохранилище 6 Административная зона 7 Технические помещения Схемы можно оформить в виде 2D-планов (рис. 5.1), 3D-разрезов (рис. 5.2) и/или взрыв-схемы (рис. 5.3–5.4). При использовании 3D-разрезов или взрыв-схем важно отразить ключевые функциональные связи между этажами и обосновать принципы организации пространства. Для обозначения различных функциональных зон на схеме можно использовать цвет, текстовую информацию, иконки или символы.
Рис. 5.1. Пример оформления функционального зонирования (2D-план)
Рис. 5.2. Пример оформления функционального зонирования (3D-разрез)
Рис. 5.3. Пример оформления функционального зонирования (взрыв-схема)
Рис. 5.4. Пример оформления функционального зонирования (взрыв-схема)Определить площадь каждой зоны и представить в виде круговой диаграммы (см. рис. 5.5) для каждого этажа. Для обозначения различных функциональных зон на схеме можно использовать цвет, текстовую информацию, иконки или символы.
Рис. 5.5. Пример оформления круговой диаграммыМоделирование непараметрического фасада. Минимум 1 фасад, не включенный в блок программирования (п. 1.2), необходимо оформить в соответствии с концепцией проекта. Под архитектурным фасадом понимается его лицевая сторона, которая формирует первое впечатление об архитектурной идее и функциональных особенностях объекта. Фасад должен отражать концепцию проекта, обеспечивать эстетическую привлекательность и гармоничное восприятие в контексте окружающей среды. Элементы фасада включают оконные и дверные проемы, стены, элементы декора, отделку наружных поверхностей, а также системы наружного освещения. Моделирование фасадов предполагает использование непараметрических решений, где форма и элементы фасада могут быть определены свободно в соответствии с общей концептуальной идеей. Допускается моделирование дополнительных декоративных элементов фасада с учетом гармоничного сочетания с параметрическими фасадами. Декоративные элементы могут выступать за конструктивные габариты здания максимально на 3000 мм.
Ответ представить в виде:
- 4–5 видовых скриншотов, показывающих здание с разных сторон с учетом окружения в формате
.jpgили.pdf; - схемы функционального зонирования для каждого этажа. Формат файлов:
.jpgили.pdf. - файл с 3D-моделью здания формата
.rnp,.ifc; - файл
.fbxили другой 3D-формат для визуализатора.
- 4–5 видовых скриншотов, показывающих здание с разных сторон с учетом окружения в формате
- Минимум один фасад здания библиотеки необходимо разработать с использованием языка визуального программирования — с помощью специальных модулей, таких как Rhino, Grasshopper, Dynamo в связке с программами 3D-моделирования (ArchiCAD, Renga). Т. е. фасадное решение должно стать результатом отработки скрипта (алгоритма).
- Проекции фасада в трех плоскостях (в декартовой системе координат XYZ) желательно представить с использованием аппарата элементарной геометрии на плоскости (точка, прямая). Проекции фасада (на план этажа) на каждом этаже должны быть уникальными. Способ создания геометрии фасада (формообразующие, mesh-геометрия, размножение единичного элемента по математической формуле/формообразующей, плоскость через кривые и т. д.) и концепция создания алгоритма выбирается участником самостоятельно.
- Размер максимального выпирания проекции конструкций фасадных решений от существующей сетки осей здания в плане не должен превышать 1000 мм. В случае простой геометрии размер отсчитывается под углом 90° к связанному вертикальному элементу каркаса, в случае нелинейной геометрии проекции фасада на плане (кривая линия) размер отсчитывается от нормали каждой элементарной единицы (полигона) автоматически.
- На фасаде необходимо разместить элемент, размноженный или по-другому отражающийся (это может быть паттерн, рисунок или любой объемный элемент), удовлетворяющий общей концепции принятой внутри команды. Примеры https://disk.yandex.ru/d/RtvfvB_9tN7rbQ.
- Ограничений на используемые ноды в скрипте и категорию создаваемых элементов нет.
Непараметрические фасады (все, кроме фасада разрабатываемого в данной части) выполняются основными средствами информационного моделирования (Renga, см. пункт 1.1. Моделирование).
Ответ представить в виде:
.gh(проект в Grasshopper),.3dm(проект в Rhino),- или
dyn(проект Dynamo), - а также всех связанных файлов в зависимости от того, каким способом решалась задача (
.tif,.osm,.png,.dt2,.xml,.zipи т. д.), - импортированный
dwg(нужно передать файл рельефа архитектору и визуализатору), .fbx(формат 3D-модели для визуализатора).
Минимум один элемент благоустройства (скамейка, инсталляция, арт-объект или т. п.) следует выполнить с использованием языка визуального программирования — с помощью специальных модулей, таких как Rhino, Grasshopper в связке с программами 3D-моделирования (ArchiCAD, Renga). Т. е. минимум один элемент благоустройства нужно представить как результат отработки скрипта (алгоритма). Элемент должен быть параметризированный, а именно, иметь минимум четыре вводных параметра, при изменении пользователем которых меняется конечная геометрия создаваемого элемента благоустройства (изменения должны быть четко видны, геометрия не должна «разрушаться»). Все вводные параметры необходимо объединить в одну группу и переименовать на «Вводные данные».
Ответ представить в виде файла в формате
.gh(проект в Grasshopper),.3dm(проект в Rhino).
Выполнение задания разбивается на два этапа: создание мудборда и создание визуализаций.
На этом этапе необходимо разработать мудборд, на основе которого команда будет разрабатывать упрощенную эскизную модель библиотеки. В рамках выполнения мудборда необходимо сгенерировать не менее трех изображений архитектурного образа библиотеки (https://disk.yandex.ru/d/7hW-tCJ1aM9lmw), фасадного параметрического элемента с помощью нейросетей (Stable Diffusion, Midjourney, FLUX, DALL·E и др.):
Сформируйте промт для генерации изображений (на английском языке), учитывая:
- Основную концепцию (модельная библиотека, сибирский климат, архитектурный стиль, материалы и конструктивные особенности).
- Окружающую среду (снег, лес, городская среда и т. д.).
- Атмосферу и освещение (уютное теплое освещение внутри, контраст с холодным окружением и т. д.).
- Пример промта на английском языке по созданию образа будущего здания: Exterior, library, two floors, Scandinavian minimalism, wood, panoramic windows, Siberian landscape, soft ambient lighting, cinematic winter atmosphere.
- Пример промта на английском языке по созданию фасадного элемента: A geometric facade panel for modern architecture, designed to be modular and repeatable for creating seamless building facades. The panel features intricate geometric patterns incorporating triangles, hexagons, and other shapes within the design. Material textures include polished metal and natural wood, combined with clean, minimalistic details. The style is contemporary with a focus on symmetry and aesthetics. The panel is photographed in high resolution with a neutral background to emphasize the design. Perfect for modern architectural projects.
- Ссылка на бесплатные версии нейросетей — Stable Diffusion (https://huggingface.co/spaces/stabilityai/stable-diffusion-3.5-large), FLUX https://huggingface.co/spaces/black-forest-labs/FLUX.1-dev (картинка появляется из шума), Midjourney (https://huggingface.co/spaces/mukaist/Midjourney). Когда будет достигнут лимит генерации, создайте бесплатный аккаунт, чтобы продолжить работу.
Добавить в мудборд визуальные референсы, отражающие эстетику и концепцию проекта. Это могут быть:
- текстуры (дерево, стекло, бетон);
- цветовые палитры;
- природные мотивы (лес, снег, световые эффекты);
- элементы конструктивных решений (фасады, модульные соединения, окна и т. д.).
- Оформить мудборд в любом графическом редакторе (Photoshop, CorelDRAW, Microsoft PowerPoint и др.).
Ответ представить в виде:
- Готовый мудборд необходимо представить в формате
.jpgс разрешением не ниже \(1920\times 1080\) пкс. Название файла должно быть в формате: «Название команды_moodboard». - Отдельно необходимо предоставить сгенерированные изображения в формате
.jpg. Разрешение может быть любым, но не превышать \(1024\times 1024\) пкс. Каждый файл должен быть пронумерован следующим образом: «Название команды_генерацияЗдания1», «Название команды_генерацияЗдания2», «Название команды_генерацияФасада1» и так далее.
Для выполнения этого этапа визуализатор должен собрать все элементы проекта (площадка по ПОЗУ; каркас здания; фасады и т. п.) в единую 3D-сцену в одной из программ визуализации (Twinmotion или Lumion) или в программе 3D-моделирования (Blender) для дальнейшего переноса в программу визуализации. Используя программу для визуализации (Twinmotion или Lumion), необходимо разместить в сцене следующие элементы благоустройства:
- деревья, кустарники и прочее озеленение;
- МАФы (малые архитектурные формы: скамейки, беседки, урны, ограды, скульптуры, садовая мебель и др.);
- объекты уличного освещения (фонари, светодиодное освещение и т. п.); помимо размещения самого объекта освещения, необходимо настроить источники, чтобы они освещали сцену в ночное время (интенсивность освещения, цвет и другие настройки освещения);
- окружающая застройка (можно представить простыми геометрическими формами).
- В полученной сцене необходимо применить материалы ко всем элементам здания (рекомендуется использовать текстурированные материалы). Текстуры материалов должны быть в приемлемом качестве и в нужном масштабе.
- В режиме создания камеры в программе создайте девять кадров перспективного вида участка. Кадры должны включать здание, окружение, МАФы. Визуализации делаются с уровня глаз человека (1,75 м) или с высоты птичьего полета. Центральное положение должен занимать проектируемый объект.
- Несколько визуализаций должны демонстрировать пространство вокруг здания с параметрическими или смоделированными МАФами на территории библиотеки. Убедитесь, что пространство за границами проектируемого участка не остается пустым — необходимо заполнить его фоновыми элементами, такими как деревья, здания или абстрактные геометрические формы, имитирующие застройку. Горизонт не должен быть виден, окружающая среда должна создавать ощущение замкнутого и целостного пространства. Погодные условия, время суток и освещение выбираются участниками на свое усмотрение. Они не должны мешать восприятию архитектуры здания (в вечернее и ночное время дня здание должно быть хорошо видно, освещено источниками света).
Список обязательных кадров (9 шт.):
- 1–2 кадра — вид с птичьего полета.
- 1 кадр — вид на параметрический фасад здания с позиции человека.
- 1–2 кадра — вид на боковые фасады с позиции человека.
- 1–2 кадра — вид на окружающее пространство здания с параметрическими МАФами с позиции человека.
- 1–2 кадра — вид на здание с высоты птичьего полета или с позиции человека в вечернее/ночное время.
- В кадрах обязательно должны присутствовать информаторы масштаба (люди, деревья, автомобили и другие объекты).
Примените материалы здания в соответствии с представленным мудбордом. Подберите материалы таким образом, чтобы они максимально точно передавали цветовую гамму, стилистику и фактуру, заложенные в концепции. Уделите внимание текстуре, отражению света, степени матовости или глянца, а также соответствию выбранных материалов общей эстетике проекта.
Ответ представить в виде:
- 9 изображений разрешением \(1920\times1080\) (или выше, но не более \(3840\times2160\)) в формате
.jpg, показывающих здание с разных сторон. Каждый кадр должен быть пронумерован от 1 до 9, а название файлов должно соответствовать формату: <<Название команды_вид с птичьего полета_1», «Название команды_вид на параметрический фасад_2» и т. д. - Файл формата выбранной программы для визуализации (
.lm,.tm,.blend);
Участникам необходимо разработать планировочное решение основного читального зала, расположенного на первом этаже.
Выполнить планировку читального зала, расположенного на первом этаже. Обязательный перечень зон, входящих в читальный зал, приведен в таблице 1.3.
Таблица: Экспликация зон, входящих в читальный зал № Наименование 1 Основная зона чтения и работы 2 Зона коллективной работы / событийная площадка 3 Зона отдыха и неформального чтения 4 Зона книжных стеллажей и хранения 5 Информационная зона 6 Зона ресепшн / обслуживания пользователей 7 Буферная зона и проходы При проектировании читального зала рекомендуется учитывать возможность его гибкой трансформации в зависимости от потребностей пользователей. Это позволит эффективно использовать пространство для различных сценариев работы, встреч и мероприятий. Для этого можно предусмотреть:
- модульную мебель, которая легко меняет конфигурацию;
- гибкие сценарии использования;
- мобильные элементы, обеспечивающие удобную адаптацию пространства.
Например, зона коллективной работы может быть переформирована в событийную площадку, где в стандартном варианте — это место для совместной работы и обсуждений, а при необходимости — мини-лекторий, место для проведения мастер-классов, тренингов.
Для проектирования читального зала и библиотеки рекомендуется опираться на следующие нормативные документы:
- СП 118.13330.2022 «Общественные здания и сооружения» (актуализированная редакция СНиП 31-06-2009). Требования к составу помещений, площади читальных залов, минимальным проходам и путям эвакуации.
- СП 160.1325800.2014 «Библиотеки. Требования к проектированию». Определяет параметры зонирования библиотек.
- СП 59.13330.2020 «Доступность зданий и сооружений для маломобильных групп населения». Требования к ширине проходов, высоте столов, организации рабочих мест для людей с ограниченными возможностями.
- СП 1.13130.2020 «Эвакуационные пути и выходы». Определяет требования к ширине проходов (не менее 1,2 м), путям эвакуации, отделке.
- ГОСТ Р 57923-2017 «Библиотечное дело. Общие требования к зданиям и помещениям библиотек». Рекомендуемые площади библиотек, количество посадочных мест в читальных залах, параметры книжных стеллажей.
- Расчетное число посетителей библиотеки: 150 человек.
- Разместить мебель в читальном зале с учетом принципов эргономики, обеспечивая комфортное зонирование пространства и удобное перемещение посетителей. Следует обозначить габаритные размеры мебели и ширину проходов между предметами интерьера, стенами и функциональными зонами (например, расстояние между рабочими столами, ширина проходов между книжными стеллажами и зонами чтения).
- Оформить схему функционального зонирования для основного читального зала. Схема функционального зонирования может быть выполнена в программах, внутри которых ведется моделирование (Renga, ArchiCAD), графическая доработка может быть выполнена в доступном графическом редакторе (Photoshop, Illustrator, CorelDRAW). Добавить условные обозначения, зоны должны быть промаркированы четким и читабельным способом, например, с использованием цвета или условных символов.
Для планировки читального зала необходимо оформить три плана:
- Первый план — с указанием внутренних габаритных размеров помещения, размеров оконных и дверных проемов, расположения несущих конструкций и перегородок.
- Второй план — с функциональным зонированием помещения, указанием всех используемых зон. Зоны могут быть промаркированы различным читабельным образом, например, цветом или условными обозначениями.
- Третий план — с расстановкой мебели и оборудования, указанием размеров предметов интерьера и проходов между ними.
Участникам необходимо разработать план освещения и напольных покрытий для основного читального зала.
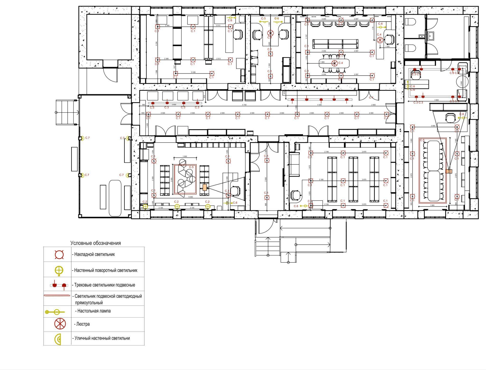
Разработать план освещения читального зала, учитывая нормативные требования и эргономику. План должен включать распределение освещения по зонам (общая, местная и акцентная подсветка), расположение осветительных приборов (потолочные светильники, настольные лампы и торшеры). Необходимо учесть возможность использования энергосберегающих технологий и влияние естественного света. Результатом работы должен быть план с указанием расположения светильников и типов освещения. Кроме того, на плане должны быть проставлены размерные линии, указывающие размеры и расстояния между осветительными приборами и другими элементами интерьера.
Рис. 5.6. Пример оформления плана освещенияВ дополнение к плану освещения требуется предоставить условные обозначения для каждого типа светильника. В состав условных обозначений следует ввести символы / стандартные графические изображения, легко воспринимаемые и соответствующие типу светильника на плане, а также наименование светильника, включающее:
- текстовое описание типа светильника,
- модель,
- назначение.
В состав условных обозначений внести символы / стандартные графические изображения, легко воспринимаемые и соответствующие типу светильника на плане. А также наименование светильника, состоящее из текстового описание его типа, модели или назначения (например, «встраиваемый потолочный светильник», «трековый светильник» и т. д.).
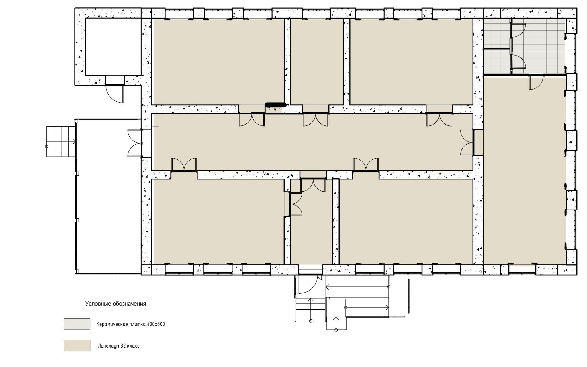
Разработать план напольных покрытий для читального зала, учитывая функциональные требования и эргономику. План должен включать распределение различных типов покрытий по зонам (например, зоны для работы, зоны отдыха, проходы и т. д.), а также указание на типы материалов (ковровые покрытия, плитка, паркет и другие). Необходимо учесть требования по износостойкости, безопасности и простоте ухода за покрытиями. Результатом работы должен быть план с указанием расположения материалов и их типов. В дополнение к плану напольных покрытий требуется предоставить условные обозначения для каждого типа покрытия с указанием площади, занимаемой каждым материалом. Условные обозначения должны быть ясными и легко различимыми, с указанием типа покрытия, его текстуры или цвета, а также точных размеров и площади, которую оно занимает на плане.
Рис. 5.7. Пример оформления плана напольных покрытий
Участникам необходимо провести расчет рабочих мест в читальном зале и разработать план освещения этого помещения.
Определить оптимальное количество рабочих мест в читальном зале, исходя из нормативных требований, удобства пользования и зонирования пространства:
- вычислить общую площадь читального зала;
- определить норму площади на одного посетителя (по СП 160.1325800.2014);
- определить минимальную ширину проходов между рядами столов (СП 59.13330.2020);
- рассчитать площадь, отведенную под другие функциональные зоны (места хранения книг (стеллажи), зоны отдыха и неформального чтения, проходы и стойка библиотекаря и т. д.); эти зоны важно учесть при расчете площади для рабочих мест, чтобы оптимально распределить пространство;
- определить количество посадочных мест с учетом нормы площади на человека и доступных зон для размещения рабочих мест;
- отразить вычисленное количество рабочих мест на плане с расстановкой мебели и оборудования;
- оформить схему/таблицу с иллюстрацией расчета, созданной в любом доступном графическом редакторе (Photoshop, Illustrator, CorelDRAW).
Ответ должен включать:
- План с указанием внутренних габаритных размеров помещения; план функционального зонирования; план с расстановкой мебели и оборудования; план освещения; план напольных покрытий. Формат файлов:
.jpgили.pdf. - Файл с 3D-моделью здания формата
.rnp,.3dmили.pln(.pla); - Файл
.fbxили другой 3D-формат для визуализатора; - * Расчет рабочих мест в виде схемы/таблицы в формате
.jpg, название файла должно соответствовать формату: «Название команды_расчет_1», «Название команды_расчет_2» и так далее.
C помощью средств программирования необходимо предложить наиболее выгодный вариант планировки первого этажа библиотеки для увеличения пространства читального зала. Нужно включить все требуемые помещения, перечисленных в модуле «Моделирование», при этом нельзя делать площадь помещений в алгоритме менее требуемой в СП.
Без привязок к существующим точками сетей подключения предложите наиболее экономичное использование пространства библиотеки в пределах границ внешних стен для того, чтобы за счет «освободившегося места» расширить пространство читального зала.
Данное предложение будет вынесено заказчикам как возможность перепланировки. Оно не используется при решении задания блока «Моделирование» и «Визуализация».
Для построения алгоритма поиска используйте инструмент Galapagos. Компонент Galapagos в Grasshopper выделяется своим ярко-розовым цветом, и на то есть веская причина: это гораздо больше, чем просто компонент. С ним открывается возможность находить оптимальное решение, учитывая любое количество переменных параметров. Описание работы данного инструмента можно прочитать в статье https://hopific.com/galapagos-grasshopper-tutorial/.
По ссылке (https://disk.yandex.ru/d/T8TolXKQJhwNBg/Galapagos/) открывается пример решения упрощенной схемы планировки, а именно, компоновки существующих границ маленьких прямоугольников в границе одного большого прямоугольника. При решении текущей задачи допускается упрощение границ помещений до прямоугольников (можно не отрисовывать в границах оконные и дверные проемы).
Ответ представить в виде:
.gh(проект в Grasshopper),.3dm(проект в Rhino);- скриншот окна Galapagos с зафиксированными значениями изменяемых данных.
На этом этапе необходимо выполнить видеооблет всей сцены с пофазной анимацией, выгрузить VR (либо панораму 360) и создать визуализации читального зала библиотеки.
На первом этапе необходимо создать видеооблет, который должен содержать пофазную анимацию. Получите от программиста модель (п. 1.2) и добавьте ее в сцену. В режиме создания видео в программе создайте видеооблет получившегося здания и участка с пофазной анимацией построения сцены. Минимальное количество фаз анимации — 4 (появление площадки, далее — стен, крыши и МАФов), допускается большее количество фаз в анимации. Очередность появления элементов должна быть строго снизу вверх. Например, не допускается появление сначала крыши, а затем площадки. Допускается объединять несколько элементов в одну фазу, например, появление площадки и деревьев, стен и ограждения и т. д. Видеоролик должен иметь сюжет движения, скорость воспроизведения комфортной для просмотра (без резких скачков, перепрыгиваний из места в место, прохода через предметы и т. д.). Время дня в видеооблете установите день, солнечную погоду. Длительность — не менее 15 с и не более 1 мин. При желании в видеоролике можно использовать музыку без слов. Пример видеооблета https://www.youtube.com/watch?v=pLwSZ0iFQUs (обратите внимание, что начиная с 0:47 показан пример, как может выглядеть пофазной анимации).
VR-сцена или панорама 360 должна содержать видовую точку с позицией человеческого роста, с которой открывается вид на параметрический фасад здания. Настройте время суток вечернее и установите ночное небо. Включите источники освещения, обеспечивающие подсветку фасада здания, а при необходимости активируйте дополнительные источники ночного освещения. Добавьте эффект дождя, создавая эффект мокрых поверхностей, но отключите сами частицы дождя, чтобы не мешать восприятию сцены.
В каждой фазе анимации должны появляться дополнительные объекты: деревья, ограждения, площадки и малые архитектурные формы (МАФы). Размещение объектов должно соответствовать логике застройки и учитывать их роль в формировании окружающей среды.
Ответ представить в виде:
- Сцена в формате
.tm(Twinmotion) либо.ls12s(Lumion), название файла должно соответствовать формату: «Название команды_сцена_часть1». - Файл формата
.exe, содержащий сцену VR (программа Twinmotion) либо файл, содержащий Панорама 360 в формате.jpgс разрешением \(8192 \times 4096\) (программа Lumion), название файла должно соответствовать формату: «Название команды_VR». - Видео в формате
.mp4с разрешением \(1280\times 720\) (минимальное \(854\times 480\)), название файла должно соответствовать формату: «Название команды_видео».
Для выполнения этой части команда использует полученную 3D-модель читального зала модельной библиотеки, полученную на этапе 2.1 Моделирования. Используя программу для визуализации (Twinmotion или Lumion), необходимо настроить в сцене следующее:
- назначьте материалы ко всем поверхностям в читальном зале;
- расставьте мебель, учитывая планировку, полученную на этапе 2.1 Моделирования;
- настройте естественное освещение таким образом, чтобы помещение освещалось; допустимо размещение искусственных источников освещения.
Поставьте 4–5 кадров с позиции человека, показывающих интерьер читального зала. На общих кадрах должен быть виден потолок и пол. Допускаются кадры с видом ниже позиции человека. В кадрах должны присутствовать информаторы масштаба — люди.
Ответ представить в виде:
- 4–5 изображений разрешением \(1920\times1080\) (или выше, но не более \(3840\times2160\)) в формате
.jpg, название файла должно соответствовать формату: «Название команды_кадр1», «Название команды_кадр2» и так далее; - сцена в формате
.tm(Twinmotion) либо.ls12s(Lumion), название файла должно соответствовать формату: «Название команды_сцена_часть2».
Итоговое решение задачи финала командой собирается в презентацию для очного выступления перед экспертной комиссией.
Структура презентации:
- Общее описание принятой архитектурной концепции (мудборд).
- Схемы функционального зонирования по 2 этажам (п. 1.1).
- Непараметрические фасады (п. 1.1).
- Параметрические фасады.
- Общий габаритный план читального зала, схема функционального зонирования читального зала, план с расстановкой мебели и оборудования читального зала, план освещения, план напольных покрытий (п. 2.1).
- Визуализации интерьера читального зала.
- Визуализации здания.
- Визуализации среды.
- Видеооблет с пофазной анимацией.
Рекомендуется использовать шаблон (https://disk.yandex.ru/i/cwBCuYdHbD_WDA). Возможно незначительное изменение дизайна презентации. Кроме того, экспертная комиссия в процессе защиты знакомится с Real-time визуализацией с демонстрацией в VR.
| Этапы | Критерии | Баллы |
|---|---|---|
| Этап 1 | ||
| 1. Моделирование | Часть 1 | |
Критерий 1
|
0–5 | |
Критерий 2
|
0–4 | |
| Часть 2 | ||
Критерий 1
|
0–2 | |
Критерий 2
|
0–2 | |
Критерий 3
|
0–2 | |
| 2. Программирование | Часть 1 | |
Критерий 1
|
0–3 | |
Критерий 2
|
0–3 | |
Критерий 3
|
0–2 | |
| Часть 2 | ||
Критерий 1
|
0–3 | |
Критерий 2
|
0–3 | |
Критерий 3
|
0–1 | |
| 3. Визуализация | Часть 1 | |
Критерий 1
|
0–2 | |
Критерий 2
|
0–2 | |
| Часть 2 | ||
Критерий 1
|
0–4 | |
Критерий 2
|
0–4 | |
Критерий 3
|
0–2 | |
Критерий 4
|
0–1 | |
* Критерий 5 (дополнительно)
|
0–1 | |
| Этап 2 | ||
| 1. Моделирование | Часть 1 | |
Критерий 1
|
0–5 | |
Критерий 2
|
0–2 | |
Критерий 3
|
0–2 | |
| Часть 2 | ||
Критерий 1
|
0–3 | |
Критерий 2
|
0–3 | |
* Критерий 3 (дополнительно)
|
0–3 | |
| 2. Программирование | Часть 1 | |
Критерий 1
|
0–3 | |
Критерий 2
|
0–3 | |
Критерий 3
|
0–4 | |
| 3. Визуализация | Часть 1 | |
Критерий 1
|
0–2 | |
* Критерий 2 (дополнительно)
|
0–1 | |
Критерий 3
|
0–2 | |
Критерий 4
|
0–3 | |
| Часть 2 | ||
Критерий 1
|
0–2 | |
Критерий 2
|
0–3 | |
Критерий 3
|
0–3 | |
| Защита | ||
| 3. Визуализация | Критерий 1 Оценивается актуальность выбранных материалов, полнота использования архитектурных элементов, а также соответствие архитектурного решения функциональному назначению здания. |
0–3 |
Критерий 2 Оценивается сложность и оригинальность архитектурного решения фасадов библиотеки, соответствующая общей концепции проекта команды. |
0–3 | |
Критерий 3 Оценивается, насколько предложенные архитектурные решения модели здания могут быть использованы в строительстве. Модель должна быть практически осуществимой, без элементов, которые невозможно реализовать (например, «висящие в воздухе» конструкции). |
0–2 | |
Критерий 4 Выполнена презентация в VR. Все необходимые файлы к защите загружены в полном объеме. |
0–2 | |
На первом этапе модуля «Моделирование» финалисты должны создать основную модель здания библиотеки, разработать площадку с различными типами дорожек и покрытий, выполнить планы функционального зонирования для двух этажей, спроектировать читальный зал и доработать непрограммируемые фасады в соответствии с архитектурной концепцией команды.
Работа начинается с создания BIM-модели библиотеки на основе предоставленных опорных чертежей. Необходимо воспроизвести сетку координационных осей, возвести наружные стены с учетом высотных ограничений, добавить окна и двери (их стиль можно менять в рамках концепции), создать межэтажные перекрытия, наружные лестницы и крышу, при необходимости изменяя ее форму.
Рис. 7.1. Пример решения модуля «Моделирование» Этапа 1. Команда «База»Разработать планы функционального зонирования для двух этажей на основе представленных данных из таблиц экспликаций. Обозначение зон должны быть понятными и легко читаемыми для оценки. Соотношение площадей каждой из зон представить в виде круговой диаграммы.
Рис. 7.2. Пример решения модуля «Моделирование» Этапа 1. Команда TeamCH1KРис. 7.3. Пример решения модуля «Моделирование» Этапа 1. Команда TeamCH1KВыполнить планировку читального зала с учетом необходимых помещений и площадей по заданию. Задание выполнить в соответствии с требованиями и нормативами, установленными для проектирования.
Рис. 7.4. Пример решения модуля «Моделирование» Этапа 1. Команда DollifinДоработать непрограммируемые фасады, они должны отражать задуманное архитектурное и стилистическое направление здания, а также гармонично сочетаться с фасадами, созданными методом параметрического моделирования.
Рис. 7.5. Пример решения модуля «Моделирование» Этапа 1. Команда «База»
Ссылка на решение команды TeamCH1K по Этапу 1. Моделирование: https://disk.yandex.ru/d/iH5z9MBTJ1n89A.
Для решения задачи по программированию участникам необходимо разработать фасадное решение на основе скрипта (алгоритма), который формирует его геометрию в соответствии с заданными параметрами и разработать элемент благоустройства.
Проекции фасада в трех плоскостях (XYZ) должна представлять собой элементарные геометрические формы, при этом каждая проекция на плане этажа иметь уникальную конфигурацию. Для создания геометрии нужно использовать метод размножения базового элемента по математической формуле.
Рис. 7.6. Пример решения модуля «Программирования» Этапа 1. Команда «База»Во второй части задачи участникам необходимо разработать элемент благоустройства, формируемый с помощью скрипта. Его геометрия должна изменяться в зависимости от четырех вводных параметров, объединенных в группу «Вводные данные». При изменении этих параметров автоматически корректируется финальная форма элемента.
Рис. 7.7. Пример решения модуля «Программирования» Этапа 1. Команда Exit
Ссылка на решение команды «База» по Этапу 1. Программирование: https://disk.yandex.ru/d/sGWkNVjNisN_mg.
Для решения задания по визуализации на первом этапе нужно создать мудборд и выполнить визуализации экстерьера.
- В рамках выполнения мудборда необходимо сгенерировать не менее трех изображений архитектурного образа библиотеки и фасадного параметрического элемента с помощью нейросетей (Stable Diffusion, Midjourney, FLUX, DALL·E и др.). Разместить цветовую палитру и палитру материалов (можно совместить в одной палитре).
Во второй части задания необходимо сделать сборку сцены, используя наработки по блоку моделирования и программирования, кроме этого, в сцене должны быть размещены: озеленение; МАФы, объекты уличного освещения; окружающая застройка. Озеленение должно соответствовать климатическим условиям региона и времени года. МАФы должны быть сомаштабны друг другу и остальным элементам сцены, разнообразны, расставлены в соответствии с авторской концепцией и принципами композиции. Выполнить по заданию 9 кадров.
Окружение за границей проектируемого участка заполнено окружающей природной средой.
Материалы присвоены ко всем объектам. Текстуры материалов настроены и масштабированы согласно масштабу здания.
При создании визуализации стоит помнить о том, что это композиционно правильно выстроенное изображение архитектурной среды. В кадре проектируемое здание или территория должны находиться целиком, есть передний план, есть второй план — окружение здания. Важно обращать внимание на требования по загрузке, относящиеся к размеру и расширению файлов.
Рис. 7.9. Пример решения модуля «Визуализация» Этапа 1. Команда «Синтез»
Ссылка на решение модуля «Визуализация» Этапа 1. Команда «Синтез»: https://disk.yandex.ru/d/DN9V-Ekn-1qfDw.
В качестве правильного ответа на Этапе 2 блока «Моделирование» финалистам необходимо сделать планировку читального зала, оформить к нему план освещения и план напольных покрытий.
Ссылка на решение модуля «Моделирование» Этапа 2. Команда Archiаров: https://disk.yandex.ru/d/6llW0DoViUtmZw.
Необходимо предложить оптимальный вариант планировки с использованием инструмента Galapagos. Алгоритм, построенный с помощью инструмента Galapagos в Grasshopper, действительно находит выгодное решение для планировки первого этажа библиотеки, учитывая все заданные параметры и ограничения существующей планировки.
Ссылка на решение модуля «Программирование» Этапа 2. Команда Archiаров https://disk.yandex.ru/d/BEkkR92Eo54yvA.
На втором этапе финальной задачи участникам необходимо создать иммерсивный рендер экстерьера и статичные визуализации интерьера, подготовить видео-презентацию проекта с пофазной анимацией.
- По первой части задания необходимо создать видеооблет, который должен содержать пофазную анимацию. Минимальное количество фаз анимации — 4 (появление площадки, далее — стен, крыши и МАФов), допускается большее количество фаз в анимации. Очередность появления элементов должна быть строго снизу вверх. Длительность ролика — не менее 15 с и не более 1 мин.
- Во второй части — используя полученную 3D-модель читального зала модельной библиотеки, сделать визуализации интерьера читального зала.
Распространенной ошибкой при постановке кадров является неправильная композиция. Часто в кадре отсутствуют объекты целиком, здание обрезано, невозможно понять пропорции и размеры объектов.
Ссылка на решение модуля «Визуализация» Этапа 2. Команда TeamCH1K: https://disk.yandex.ru/d/NHRcfbTI8giKJw.
- Рекомендовано просмотреть разборы задач второго этапа на официальной странице профиля ВК: https://vk.com/nti_architecture.
- Базовый курс по Blender: https://rutube.ru/plst/317859.
- Интерфейс программы Lumion: https://youtu.be/NgGBrMC9U3k.
- Основы создания видеооблета в Lumion: https://youtu.be/MDsqLJYMVJ0.
- Модельная библиотека — это современный культурно-интеллектуальный центр, оснащенный передовыми технологиями, удобной инфраструктурой и мультимедийными ресурсами.↩︎
















