Инженерный тур. 2 этап
Задачи второго этапа помогут участникам понять последовательность создания архитектурного проекта, научат их этапам построения информационной модели, в том числе с применением инструментов программирования. Они поработают в команде, узнают об особенностях творческой деятельности и сроках выполнения разных этапов проекта.
На этом этапе участникам предлагается следующая легенда: команда участвует в архитектурном конкурсе, чтобы попробовать свои навыки в таком формате работы и пополнить портфолио. Для успешного выполнения конкурсного задания команде нужно пройти три этапа:
- смоделировать по готовым чертежам здание или сооружение,
- применить инструменты программирования,
- выполнить визуализацию проекта.
Командная работа проявляется в принятии совместных решений, которые напрямую демонстрируют качество получившегося на последнем этапе проекта.
Для решения задач второго этапа потребуются знания и компетенции, связанные с ролями в команде: архитектор-креативщик, архитектор-программист и визуализатор. Желательно на этом этапе попробовать выполнять задания разных ролей, чтобы далее по предпочтениям готовиться к заключительному этапу, углубляясь в свою тематику.
За все задачи второго этапа в сумме команда получает 100 баллов (задания по моделированию — 35 баллов, задания по программированию — 30 баллов, задание по визуализации — 35 баллов )
Индивидуальные задачи второго этапа инженерного тура открыты для решения. Соревнование доступно на платформе Яндекс.Контест: https://contest.yandex.ru/contest/69909/enter/.
В данном блоке заданий участники могут попробовать себя в роли архитектора-креативщика и архитектора-программиста.
Архитектору-креативщику предлагается решать задачи по моделированию в программе Renga, научиться выполнять автоматизированный подсчет материалов, а также добавлять элементы сборок в проект.
Архитекторам-программистам предстоит показать свое мастерство в написании алгоритмов и создании автоматизированных решений для оптимизации архитектурных решений.
Для этого понадобятся программы Renga, Rhino, Grasshopper.
Справка Renga: https://help.rengabim.com/ru/index.htm.
Перед установкой Renga ознакомьтесь с минимальными и рекомендуемыми требованиями к компьютеру и серверу. Если компьютер не соответствует минимальным требованиям, то установка и корректная работа не гарантированы.
Установочные файлы Renga Professional можно скачать по ссылке https://dl.rengabim.com/.
Чтобы установить Renga, выполните следующие действия:
- скачайте и распакуйте дистрибутив из архива
Renga.zip; - запустите инсталляционный файл
RengaSetup.exe; - следуйте указаниям инсталлятора.
Ярлык Renga не появится на рабочем столе после установки. Чтобы вынести ярлык Renga, создайте ярлык приложения Renga.exe в установочной папке, путь по умолчанию C:\Program Files\Renga, и перенесите созданный ярлык на рабочий стол.
Ознакомьтесь с информацией о системных требованиях для Rhinoceros 6 (требования для Rhino 7), обратите внимание на тот факт, что программа существует в версиях под Windows и MACOS. В рамках этого курса будет рассмотрена версия для Windows, но можно использовать и версию для MACOS, тем не менее в этой версии возможны функциональные отличия, которые преподаватели не смогут прокомментировать, так как не имеют опыта работы с ней, это может вызвать сложности при прохождении некоторых уроков и заданий курса.
Чтобы скачать пробную версию программы, действующую 90 дней, перейдите по этой ссылке для скачивания Rhinoceros: https://www.rhino3d.com/download/rhino-for-windows/evaluation/ и введите свой e-mail в указанное поле, после чего вам на почту придет письмо со ссылкой на скачивание программы и лицензионным ключом. Скачайте файл по ссылке из письма и запустите его.
Поставьте галочку о согласии с условиями и нажмите на шестеренку в правом нижнем углу окна. Далее проверьте, есть ли английский язык в списке устанавливаемых, так как в рамках курса предстоит работать именно с английской версией программы.
Теперь нажмите кнопку Установить и ждите завершения установки. Пробная версия будет работать 90 дней и обладает полным функционалом программы. Этого времени хватит, чтобы познакомиться с программой и выполнить задания.
Выполните построение стен, ориентируясь на рис. 1.1 Настройки стены оставить базовыми.

Постройте двускатную кровлю, переключаясь между параметрами сегмента и привязываясь к внешним верхним точкам стен. Параметры крыши по умолчанию. Дотяните стены под кровлю, рис. 1.2.
Отредактируйте параметры сегмента крыши, как показано на рис. 1.3.
Сместите стену на 1000 мм в сторону большего свеса, рис. 1.4.
Установите объект помещение и определите полный объем в кубических метрах.
Ответ округлите до сотых, единица измерения — кубические метры.
Формат ответа: ###,##.
Примечания
Чтобы отредактировать параметры сегмента крыши, выделите крышу, выберите характерную точку середины сегмента и задайте необходимые параметры.
Чтобы не изменить положение сегмента, переключитесь между панелями с помощью сочетания клавиш Ctrl+Tab, а между полями панели Сегмент — с помощью клавиши Tab.
Если положение изменилось, то, чтобы вернуть точку в предыдущее положение, используйте привязку на пересечении лучей, которые автоматически появляются при редактировании.
103,57.
Через управление стилями создайте новый материал, назовите его кирпич облицовочный.
Создайте новый многослойный материал для стены по рис. 1.5.
Выполните построение стен, ориентируясь на рис. 1.6. В параметрах стены выберите новый многослойный материал, созданный на предыдущем шаге.
Через управление стилями создайте фильтр для подсчета кирпича, рис. 1.7.
В обозревателе проекта создайте новую спецификацию. Тип объекта — слой, графы — материал и чистый объем. Создайте таблицу и включите фильтр. Отредактируйте графы спецификации и определите общий итог по чистому объему.
Введите в поле ответа получившееся число.
Ответ округлите до сотых, единица измерения — кубические метры.
Формат ответа: ###,##.
47,79.
Сборка — трехмерный объект, состоящий из нескольких деталей и имеющий ассоциативную связь с 3D-моделью.
В обозревателе проекта создайте новую сборку, назовите ее двухмаршевая лестница. Сборка будет состоять из двух пролетов лестницы и междуэтажной площадки — перекрытия.
Постройте один марш со следующими параметрами:
- привязка — справа,
- высота лестницы — 1500 мм,
- ширина лестницы — 1500 мм,
- количество ступеней — 10.

Привяжите первую точку построения к началу координат с помощью клавиши Shift. Протяните курсор в нужном направлении и введите расчетную длину марша — 3000 мм.
Постройте встречный марш, задав смещение по вертикали 1500 мм и смещение по горизонтали — 100 мм, привязка слева (рис. 1.8).
Постройте третий элемент сборки — междуэтажное перекрытие. Поставьте режим измерения — полярный и, привязываясь к плоскости \(XY\) по отслеживанию точек, с помощью инструмента перекрытие создайте площадку размером \(3100\times1500\) мм, смещение по вертикали 1500 мм.
Поставьте маршам параметры: форма лестницы — утолщенная, толщина лестницы — 100 мм.
Задайте сборке марку — двухмаршевая лестница. Создайте лист и добавьте объект-сборку двухмаршевая лестница, вид справа. Определите угол, указанный на рис. 1.9.
63.
Создайте последовательность чисел, начинающуюся с 0, с шагом 3 и с количеством элементов 152. Далее создайте еще одну последовательность из трех чисел: 3, 5 и 2,58. Сложите эти последовательности между собой, а затем найдите сумму всех элементов получившегося в результате сложения последовательностей списка. Эта сумма и будет ответом к данной задаче.
Формат ответа: #####.
34823.
Необходимо сгенерировать поверхность выдавливанием кривой, которая генерируется алгоритмом. Скачайте его и откройте в Grasshopper: https://disk.yandex.ru/d/4JZam6xbU4RX7A.
Выдавите данную кривую (Planar curve, выходящей из нода Interpolate) по вертикали на 30000 мм и укажите координаты центра геометрии получившейся поверхности. Ответ запишите, перечисляя координаты \(X\), \(Y\), \(Z\) через запятую и пробел с фигурными скобками, округлите до шести знаков (если в дробной части 0, оставьте только один 0).
Формат ответа: {###,######; #,######; #####,#}.
{14930,505307; 9.505797; 15000,0}.
Командные задачи второго этапа инженерного тура открыты для решения. Соревнование доступно на платформе Яндекс.Контест: https://contest.yandex.ru/contest/69932/enter/.
Для решения командной задачи потребуются знания и компетенции, связанные с ролями в команде: архитектор-креативщик, архитектор-программист и визуализатор.
Рекомендуется приступать к решению командных задач после выполнения индивидуальных задач.
Ваша команда подала заявку на участие в архитектурном конкурсе. Вы хотите попробовать свои силы в таком формате работы, а также пополнить свое творческое портфолио.
Для успешного выполнения конкурсного задания необходимо пройти три этапа:
- выполнить планировку и модель остановочного павильона с теплым контуром,
- применить средства визуального программирования для моделирования арт-объекта на фасаде сооружения и создания параметрического элемента благоустройства,
- вписать в среду, и с помощью визуализаций показать заказчику свое авторское решение.
На данном этапе понадобятся программы Renga, Rhino, Grasshopper, Twinmotion или Lumion. Для выполнения дополнительного задания по визуализации могут быть применены программы для 3D-моделирования (Blender, Sketchup и т. д).
Справка Renga: https://help.rengabim.com/ru/index.htm.
Требуется запроектировать функционально простое архитектурное сооружение, открытое в окружающее пространство, общей площадью около 100 м\(^2\), которое состоит из частично перекрытого пространства (зона ожидания транспорта на 12 мест с учетом МГН, зона с размещением торгового оборудования и банкоматов и зона с санузлом, а также открытое пространство с навесом).
Для выполнения этого задания понадобится программа Renga.
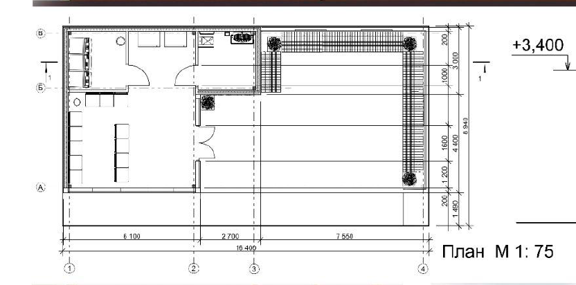
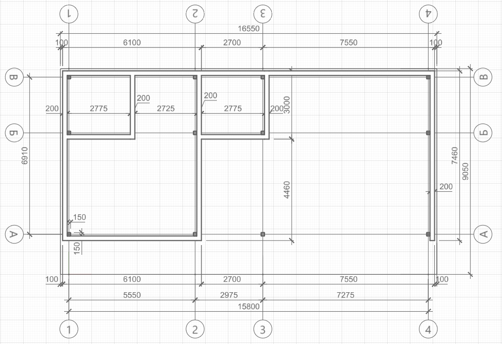
Выполните построение модели остановочного павильона в программе Renga по заданным чертежам: рис. 2.1, 2.2.
Опорный чертеж для выполнения построений, рис. 2.3.
Толщина перекрытия и кровли — 300 мм. Размеры, не указанные на опорном чертеже, участники могут принимать, ориентируясь на изображения в задании.
Дизайн в эко-стиле, с элементами растительности, деревянная конструкция и мебель будут хорошо сочетаться с парком на заднем плане объекта. Большие окна в пол позволяют увеличить угол обзора на проезжающий мимо транспорт. В планировке помещения есть все необходимое: зона ожидания, туалет, зона с банкоматами и торговая зона. Такая остановка будет максимально комфортабельна, и при этом отлично справится со своей основной функцией. Простая и лаконичная архитектурная форма прекрасно впишется в окружающую среду.
У навеса деревянная стоечно-балочная конструкция. Панорамные окна в теплой зоне для наилучшего обзора на подъезжающий транспорт. Остановка оборудована пандусом. Открытая часть навеса — металлокаркас и пластик.
Определите следующие показатели для получившейся модели:
- площадь застройки, м\(^2\);
- высота застройки, мм;
- строительный объем, м\(^3\);
- площадь зоны ожидания, м\(^2\).
Сопоставьте полученные результаты с показателями:
- 495;
- 31,82;
- 3300;
- 150.
1 — D, 2 — C, 3 — A, 4 — B.
Необходимо создать элемент благоустройства — скамейку с использованием языка визуального программирования Rhino, Grasshopper. Элемент благоустройства (скамейка) должен являться результатом отработки скрипта (алгоритма).
Скамейка должна быть параметрической: иметь минимум два вводных параметра, при изменении пользователем которых меняется конечная геометрия скамейки (изменения должны быть четко видны, геометрия не должна «разрушаться»). Все вводные параметры необходимо объединить в одну группу и переименовать на «Вводные данные». Данный элемент необходимо экспортировать в 3D-формат и разместить в общей сцене для последующих визуализаций объекта.
Ответ представить в виде файла в формате .gh (проект в Grasshopper), .3dm (проект в Rhino).
Максимальный размер принимаемого файла — 10 Мб.
Решение оценивается вручную по следующим критериям.
| Критерий | Баллы |
|---|---|
| Имеется два вводных параметра, при изменении которых меняется конечная геометрия создаваемого элемента благоустройства | 0/3 |
| Все вводные параметры объединены в группу с названием «Вводные данные» | 0/2 |
| Оригинальность геометрии и сложность построения элемента благоустройства | 0/3 |
| Итого: | 8 |
Файл в формате .gh (проект в Grasshopper), .3dm (проект в Rhino).
Примеры решений участников, оцененных на максимальный балл: https://disk.yandex.ru/d/HzGvR-FgWZrapw.
Необходимо создать арт-объект на примере панели с вращающимися указателями, расположенного в музее Рэндалла в Сан-Франциско, с помощью аттракции по вектору по видеоуроку: https://disk.yandex.ru/d/cqsx5Y1KzPSIgg/Видеоурок.mp4 и инструкции: https://disk.yandex.ru/i/AwYOTw4AiKemVg.
Дополнительно назначьте материал на все указатели, созданные алгоритмом. Усложните арт-объект, добавив дополнительные аттракторы, измените форму панели (не прямоугольную), измените форму указателя или разместите их в другом порядке или другим способом по своему усмотрению, проявите креативность и реализуйте ее в алгоритме.
Разместите данный арт-объект на одном из фасадов теневого навеса, который получился при выполнении задачи 1.1 блока «Моделирование», используя экспорт в 3D-формат из Rhino и вставив данную геометрию в сцену для блока «Визуализация».
Ответ представить в виде файла в формате .gh (проект в Grasshopper), .3dm (проект в Rhino), 3D-формат файла для вставки в сцену для визуализации.
Максимальный размер принимаемого файла — 10 МБ.
Решение оценивается вручную по следующим критериям.
| Критерий | Баллы |
|---|---|
| Алгоритм содержит в себе все ноды, используемые в видеоуроке, больше — можно, меньше — нельзя | 0/3 |
| Всем указателям (параллелепипедам) задан материал | 0/3 |
| Модель оригинальна и усложнена относительно видеоурока, корректно вписывается в общую сцену и гармонично сочетается с остальными объектами (навес, скамейка) | 0/3 |
| Итого: | 9 |
Файл в формате .gh (проект в Grasshopper), .3dm (проект в Rhino), 3D-формат файла для вставки в сцену для визуализации.
Примеры решений участников, оцененные на максимальный балл: https://disk.yandex.ru/d/PCMmlVt5y4eY6w.
Поздравляем, ваша команда практически дошла до финала конкурса, осталось подготовить визуализации проекта. Визуализации могут быть выполнены в следующих программах: Twinmotion или Lumion. Для выполнения дополнительного задания могут быть применены программы для 3D-моделирования (Blender, Sketchup и т. д.).
Внимание! Для заключительного этапа используйте модели, полученные при выполнении задач 1–3 этого блока.
Создание визуализаций — творческий процесс, который требует обсуждения в команде. Качество архитектурного решения будет оцениваться по специальным критериям, с которыми можно ознакомиться ниже.
Визуализации делаются с уровня глаз человека (1,75 м) или с высоты птичьего полета.
Обязательно учитывайте все требования к визуализации, перечисленные ниже! Прикрепить ответ на задание можно только один раз, поэтому внимательно проверяйте свои файлы и их расширения. Работы, которые не отвечают техническим требованиям задачи, не принимаются.
- Локация: парк.
- Время года: осень.
- Погода: дождь либо пасмурно.
- Время суток: день.
Важно передать осеннюю атмосферу на визуализации.
Создайте файл в любой из перечисленных программ для визуализации. С помощью инструмента создания рельефа необходимо создать парк и дорогу, у которой будет расположен теневой навес — остановка.
Вокруг объекта расставлено окружение (улицы и дороги, окружающие парк, входы в парк, пути движения посетителей по парку (основные аллеи, прогулочные аллеи, беговые дорожки, дорожки для велосипедистов, площадки различного назначения), основной массив зелени, композиционные акценты (отдельные группы деревьев, уникальные насаждения и т. д.), поляны, газоны, цветники).
С помощью встроенной библиотеки моделей в программе «оживите сцену», разместив в ней людей, транспорт и т. п.
В режиме создания камеры в программе создайте четыре кадра перспективного вида получившегося объекта в сцене. Кадры должны показывать теневой навес и его окружение с разных сторон, постарайтесь сделать их разнообразными. В этой задаче можно показать результаты дополнительного задания. Разрешение кадров от \(1920\times 1080\) до \(3840\times 2160\) точек.
В режиме создания камеры в программе создайте и покажите передний и боковой фасад вашего здания. Разрешение кадров от \(1920\times 1080\) до \(3840\times 2160\) точек.
В режиме создания видео в программе создайте видеооблет получившегося участка. Видео должно быть не менее 4 и не более 30 с.
- В программе 3D-моделирования необходимо создать модель арт-инсталляции на тему: «Взаимосвязь природы и человека в традициях народов Сибири и Урала». Полученную модель следует разместить в общей сцене и прикрепить к ответу на задание файл с моделью инсталляции в формате
.fbx,.objили.3ds. - Выполнить интерьер павильона. В помещении можно разместить банкоматы, мебель, декор, освещение и др. Рекомендуем выполнять интерьер помещения в общей стилистике, отразив авторский подход в выборе мебели и элементов декора.
В качестве ответа на задание прикрепите ссылку на внешний ресурс с открытым доступом, в который сложите следующие файлы:
- сцену в формате
.tm(Twinmotion) или.ls12s(Lumion); - четыре кадра с перспективным изображением в формате
.jpeg; - два кадра главного и бокового фасада в формате
.jpeg; - видео в формате
.mp4; - модель арт-инсталляции в формате
.fbx,.objили.3ds.
Пример эталонного решения: рис. 2.4, 2.5.
Пример решения команды участников, оцененное максимальным баллом: https://disk.yandex.ru/d/REZ8B9lGMSeZnQ
| № п/п | Критерий | Максимальный балл | Расшифровка |
|---|---|---|---|
| 1 | В визуализациях учтены вводные данные (время суток, локация, погодные условия) | 3 | 0 — не выполнено; — нет двух пунктов из условий критерия; — выполнено с нарушением или нет одного пункта из условий критерия; — выполнено верно |
| 2 | Объект размещен у дороги при входе в парк | 2 | 0 — не выполнено; — выполнено с нарушением или нет одного из условий критерия; — выполнено верно |
| 3 | Вокруг объекта расставлено окружение (люди, транспорт и т. п.) | 2 | 0 — не выполнено; — выполнено с нарушением или нет одного из условий критерия; — выполнено верно |
| 4 | Сцена содержит все модели, полученные при выполнении задач 1–3 в блоке командных задач. | 2 | 0 — не выполнено; — выполнено с нарушением или нет одного из условий критерия; — выполнено верно |
| 5 | Перспективные виды разнообразные, раскрывают здание со всех сторон | 2 | 0 — не выполнено; — перспективные виды не все; перспективные виды повторяют друг друга; — выполнено верно |
| 6 | Перспективные виды максимально отражают авторскую идею (выражена общая стилистика объектов и материалов в сцене) | 2 | 0 — не выполнено; — не все выбранные виды раскрывают авторскую идею; виды выполнены, но они не раскрывают авторскую идею; — выполнено верно |
| 7 | Фасады показаны верно | 2 | 0 — не выполнено; — есть только один фасад; показаны не фасады, а другие проекции здания; — выполнено верно |
| 8 | Видеооблет длится не менее 4 и не более 30 секунд | 2 | 0 — не выполнено; — длительность видеооблета не соответствует заданию; — выполнено верно |
| 9 | Видеооблет максимально отражает авторскую идею; в видео сохранена композиция кадра | 3 | 0 — не выполнено; — представлен видеооблет сцены не отобразил авторскую идею; — в видео не сохранена композиция кадра, но идея ясна; — выполнено верно |
| 10 | Выполнена модель арт-инсталляции (дополнительное задание 1); размещена в сцене | 7 | 0 — не выполнено; –3 — выполнено, но модель имеет простую геометрию, модель не соответствует теме задания; –5 — выполнено верно, но модель отсутствует в сцене и/или не прикреплен файл с моделью; –7 — выполнено верно и в полном объеме; модель гармонично размещена в пространстве сцены |
| 11 | Полученный рендер представляет собой композицию, объекты в сцене размещены равномерно, они со-масштабны друг другу | 3 | 0 — не выполнено; — композиция нарушена; предметы не со-масштабны друг другу; — выполнено верно и в полном объеме |
| 12 | Выполнен интерьер входной зоны и второго этажа (дополнительное задание 2);–2 ракурса на зону (текстуры, освещение, мебель, декор) | 5 | 0 — не выполнено; –2 — композиция кадра нарушена; объекты и текстуры не со-масштабны друг другу; — интерьеры выглядят пустыми, не хватает декора и освещения; — выполнено верно и в полном объеме |
















